DÉTAILS
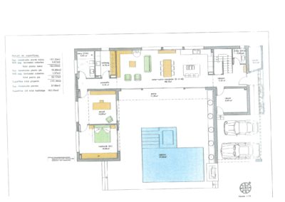
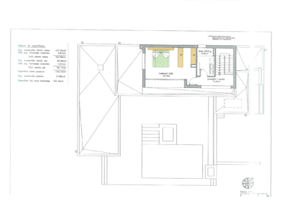
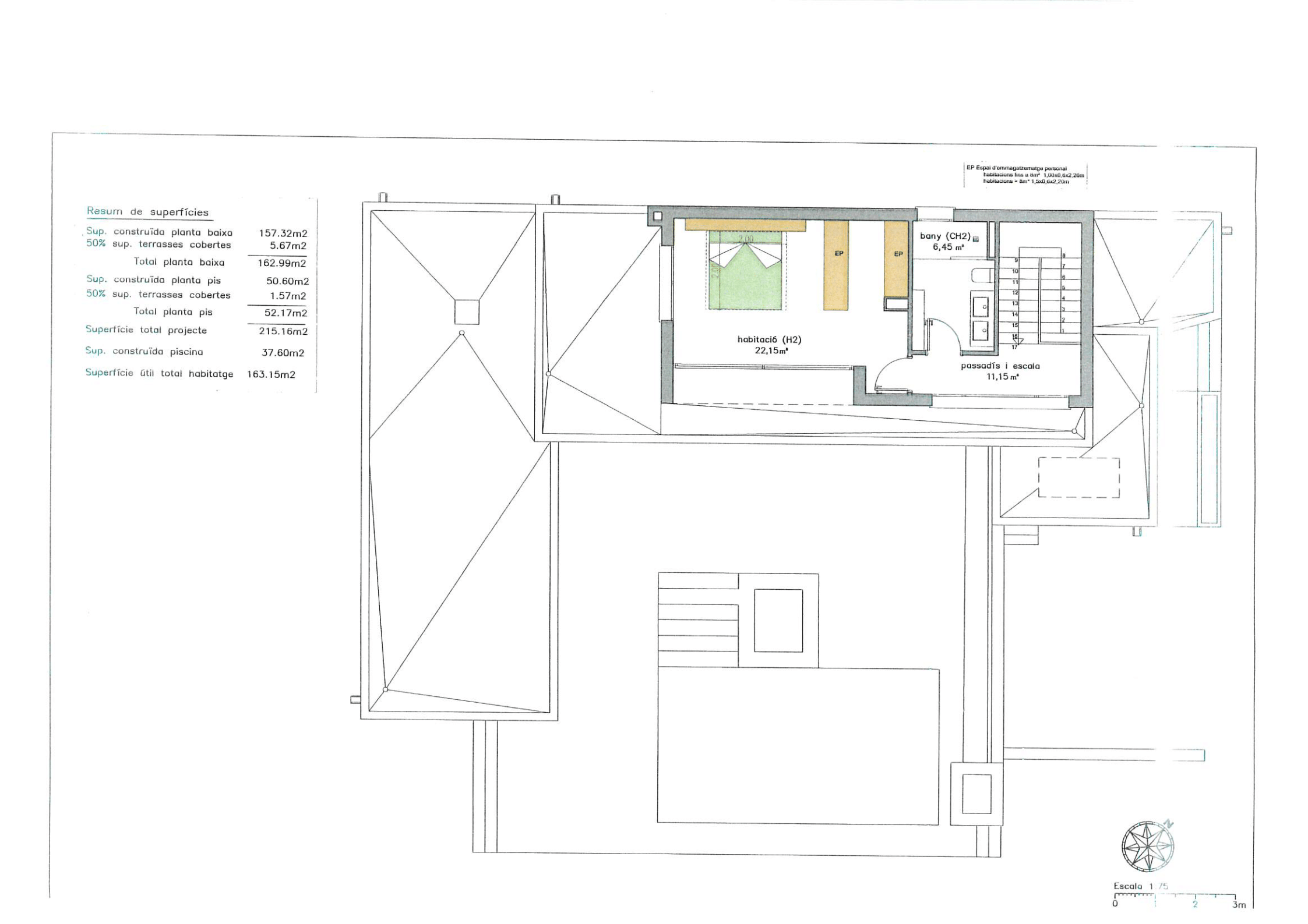
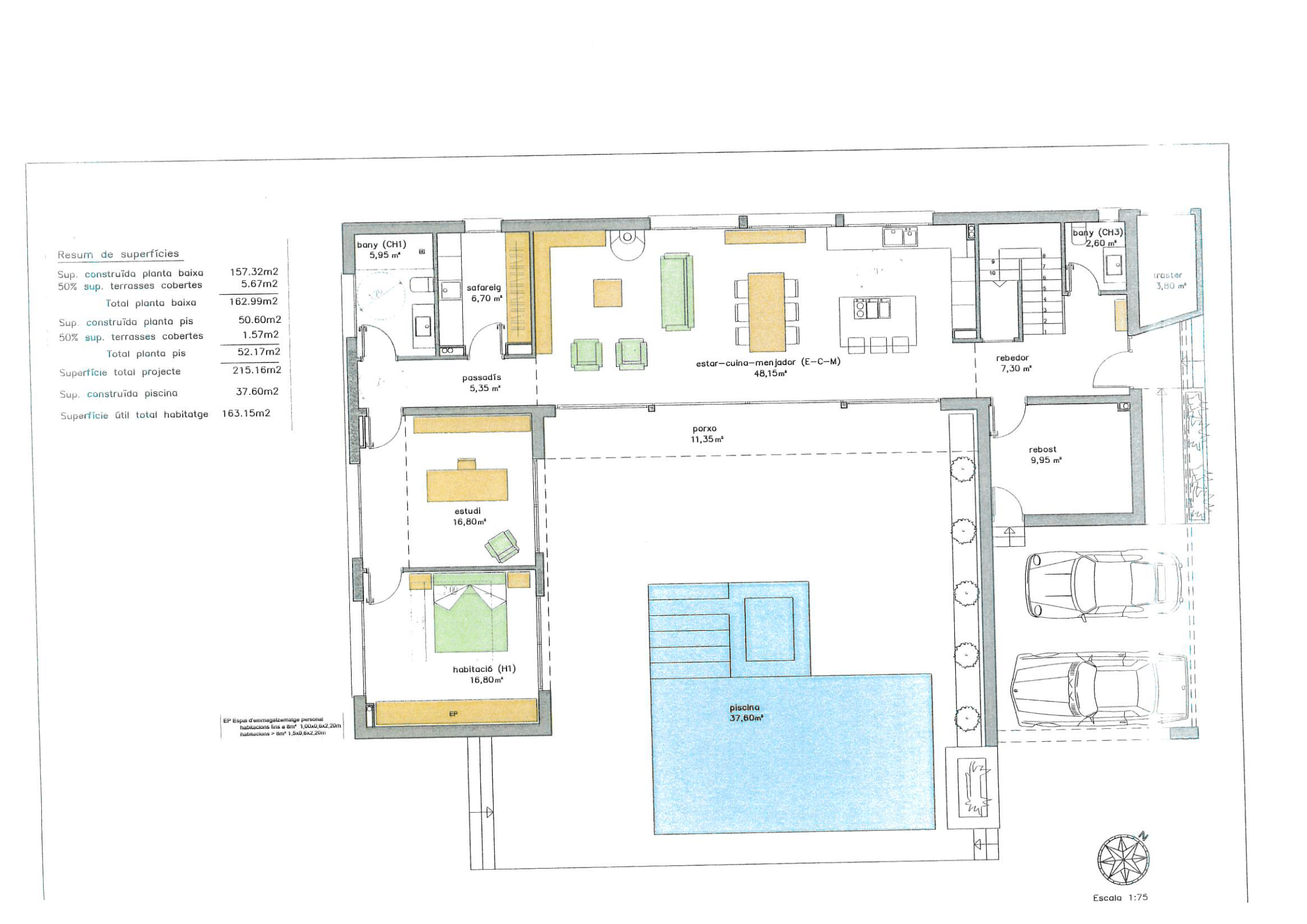
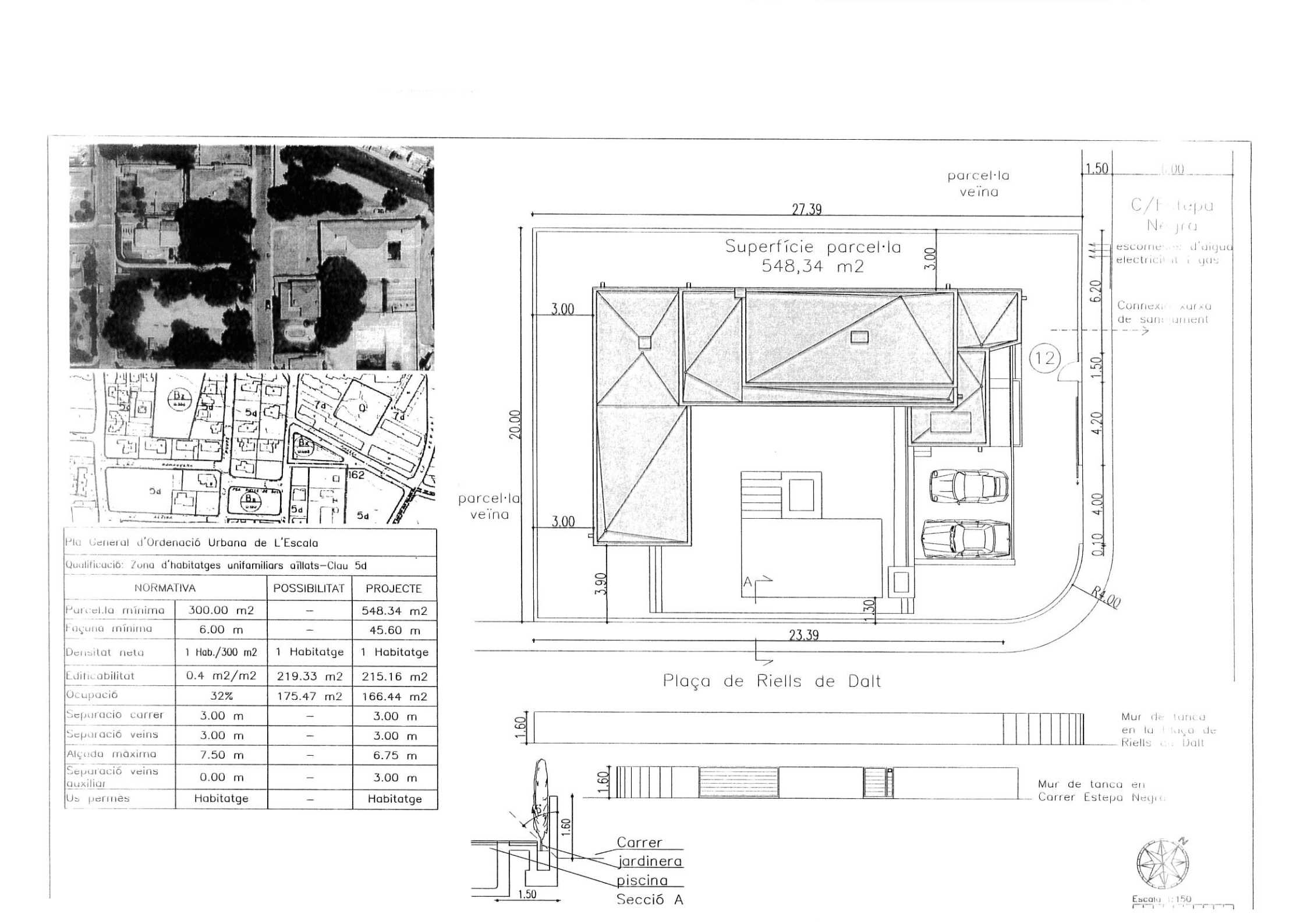
Au calme, quartier résidentiel, à +/- 1 km de la plage de Riells, magnifique terrain de coin de 548,34 m2, possibilité de construire une villa de 215 m2. ( rez-de-chaussée 162 m2 + étage 53 m2 )
Prêt à bâtir, un projet a été accepté par la mairie, il serait possible de le prolonger ou demander un nouveau permis selon vos désidérata.
Les murs d’enceinte sont déjà construits tout autour de la maison sur une hauteur de 1.80 m2, les fondations sont faites et les excavations pour la piscine et le jacuzzi sont terminées.
Possibilité de voir les plans à notre bureau.
A visiter!
DEMANDEZ PLUS D'INFORMATIONS















